Maison - option v. - 5350 Ohey

Maison - à vendre - 5350 Ohey
2 2 800 m² PEB : E

Description

À découvrir, dans un charmant petit ensemble immobilier situé au cœur du village de Haillot, magnifique et spacieux bâtiment en pierres du pays comprenant une maison de plain-pied et une grange aménageable de plus de 700 m². Ce bien rare, offrant de nombreuses possibilités, conviendra parfaitement pour un projet familial, un investissement locatif, une habitation kangourou ou encore un projet de développement immobilier.
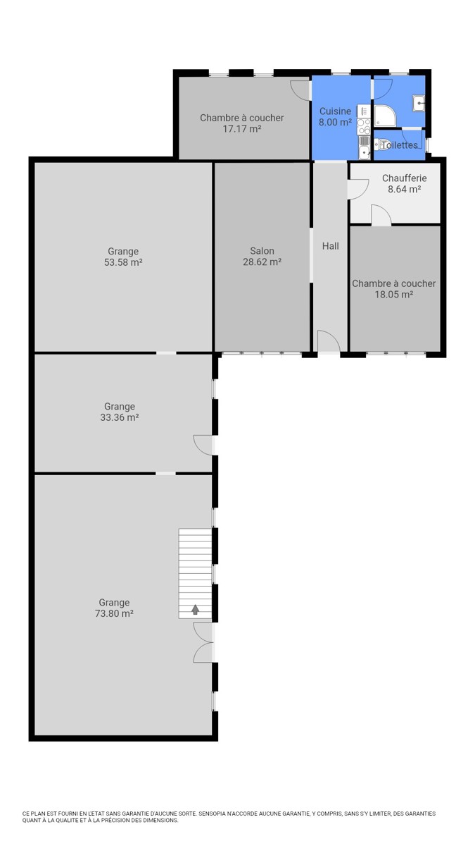
La maison, d’une superficie d’environ 130 m², se compose d’un hall d’entrée, d’un séjour lumineux, d’une cuisine équipée, d’une salle de douche, d’un bureau (ou dressing) ainsi que 2 chambres. L’étage supérieur est entièrement aménageable, offrant un beau potentiel d’agrandissement selon les besoins. À l’arrière, un beau jardin complète agréablement l’ensemble.
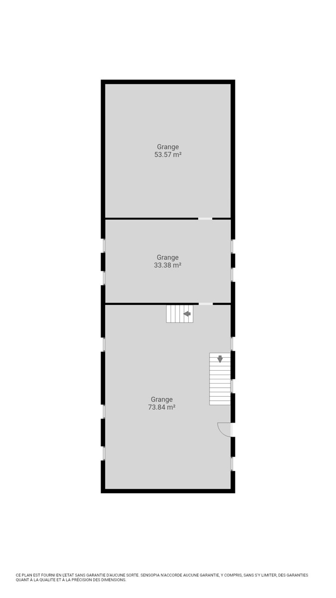
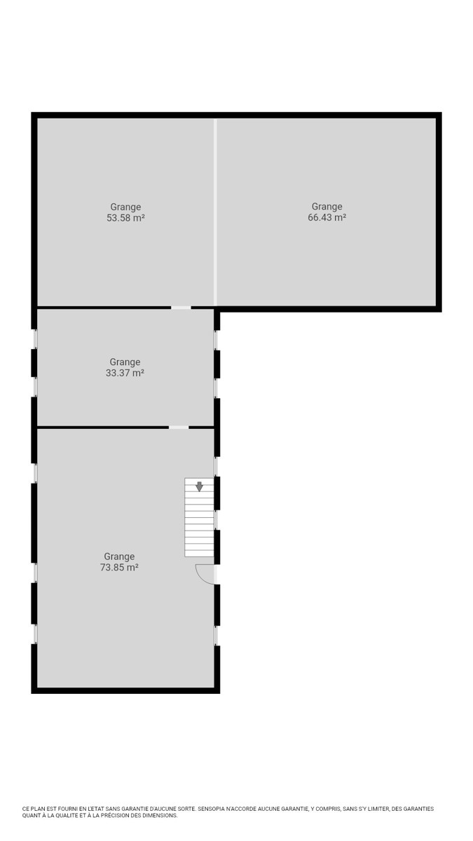
La grange attenante développe quant à elle une surface impressionnante de plus de 700 m², répartie sur 3 plateaux d’environ 240 m² chacun. Cet espace, se prête à de nombreux aménagements : lofts, logements, ateliers, espaces professionnels ou encore projet immobilier ( soumis a permis d’urbanisme) etc.

Sur le plan technique : deux compteurs électriques, chaudière au mazout récente et d’une toiture en parfait état. De nombreux emplacements de parking sont également disponibles, offrant un confort supplémentaire.

Faire offre à partir de 299.000 € : le propriétaire, vendeur du bien, dispose de la faculté, de manière totalement libre et autonome, de vendre ou de ne pas vendre. S’il décide de vendre, il n’est nullement tenu de retenir l’offre la plus élevée mais choisit celle qui lui convient le mieux au regard de ses propres critères (montant de l’offre, conditions suspensives, délai de signature, etc.). Renseignements donnés à titre informatif et non contractuel

Enfin, il est également possible d’acquérir un second bâtiment attenant : une maison de 4 chambres, idéale pour compléter ou étendre le projet initial.
Un bien rare sur le marché, à visiter sans tarder !


Sur le plan technique : deux compteurs électriques, chaudière au mazout récente et d’une toiture en parfait état. De nombreux emplacements de parking sont également disponibles, offrant un confort supplémentaire.

Enfin, il est également possible d’acquérir un second bâtiment attenant : une maison de 4 chambres, idéale pour compléter ou étendre le projet initial.
Un bien rare sur le marché, à visiter sans tarder !

Faire offre à partir de 299.000 € : le propriétaire, vendeur du bien, dispose de la faculté, de manière totalement libre et autonome, de vendre ou de ne pas vendre. S’il décide de vendre, il n’est nullement tenu de retenir l’offre la plus élevée mais choisit celle qui lui convient le mieux au regard de ses propres critères (montant de l’offre, conditions suspensives, délai de signature, etc.). Renseignements donnés à titre informatif et non contractuel

Général

Référence 7078706
Catégorie Maison
Nombre de chambres 2
Nombre de salles de bain 1
Terrasse Oui
Surface habitable 800 m²
Disponibilité à l'acte

En chiffres

Nbre de toilette(s) (nombre) 1
Nombre de sdd 1

Charges & Rendement

Charges locataire (montant) 30 €
Sous régime TVA Non

Equipement extérieur

Piscine Non

Equipement de base

Ascenseur Non
Chauffage (Format/energie) mazout (chauf. centr.)
Type de cuisine semi-équipée

Spécificités terrain

Type d'environnement campagne

Certificats / Attestations

Certificat d'électricité (oui/non) non

Energie

Label PEB (Classe) E
PEB E-SPEC (kwh/m²/an) (Consommation énergétique) 362
Emission CO2 (Emission GES) 47084
E total (Kwh/an) 362
PEB code unique (-) 20240126001697
PEB valide jusqu'au (validité) 26/01/2034
Date du PEB 26/01/2024
Prendre contact pour le bien : 7078706

* Champs obligatoires

Préférences pour les cookies

La protection de vos données personnelles est importante pour nous. C’est pourquoi nous détaillons ci-dessous les différents services et fonctionnalités du site qui utilisent des cookies et nous vous laissons décider des cookies que vous souhaitez autoriser ou refuser.

Veuillez cependant noter que si vous bloquez certains types de cookies, cela pourrait impacter votre expérience de navigation sur notre site ainsi que les fonctionnalités disponibles.

Nous utilisons des cookies fonctionnels obligatoires pour assurer le bon fonctionnement du site. Ils sont, par exemple, nécessaires pour retrouver le résultat d’une recherche ou enregistrer le choix de la langue.

Certaines fonctionnalités, comme l’affichage de vidéos ou de cartes géographiques, sont assurées via des composants externes développés par des partenaires comme YouTube ou Google. Certains composants utilisent des cookies qui sont susceptibles de permettre à ces tiers de suivre le comportement des internautes afin, par exemple, de réaliser du ciblage publicitaire. L’activation de ces fonctionnalités et des cookies associés est donc soumis à votre consentement.