
À découvrir, un ensemble immobilier exceptionnel offrant plus de 1.000 m² bâtis sur un terrain de 20 ares 47 centiares. Ce bien rare, aux multiples possibilités, conviendra aussi bien pour un projet familial que pour un investissement locatif, une habitation kangourou ou encore un projet de développement immobilier.
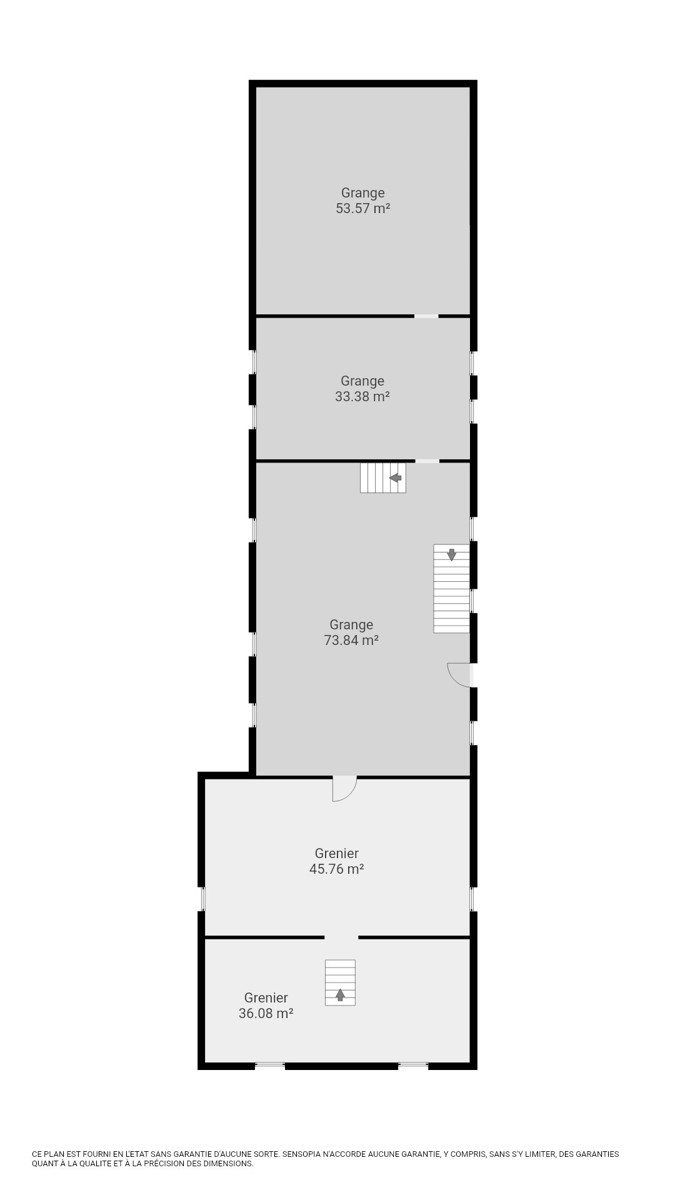
Il se compose actuellement de deux logements totalement indépendants ainsi que d’une grande grange de ± 700 m² aménageable *.
Le premier logement est une maison de plain-pied de 130 m² comprenant : hall d’entrée, séjour lumineux, cuisine, salle de douche, bureau ou dressing ainsi que deux chambres. L’étage supérieur est entièrement aménageable, offrant un beau potentiel d’agrandissement. Beau jardin accessible.
Le deuxième logement est une spacieuse maison de 190 m², entièrement rénovée en 2012. Elle dispose au rez-de-chaussée : hall d’entrée, cuisine équipée, grande salle à manger, d’un salon indépendant ou bureau, buanderie et WC séparé. L’étage comprend 4 chambres et salle de bain et débarras. Le bien bénéficie en outre d’un grand grenier, d’une cave à vin et d’un beau jardin.
Sur le plan technique : trois compteurs électriques, de deux compteurs d’eau, de chaudières indépendantes ( mazout) récentes ainsi que d’une toiture en parfait état. De nombreux emplacements de parking viennent compléter l’ensemble.
Un cadre agréable et verdoyant au cœur du village de Haillot, tout en restant proche des axes principaux vers Andenne, Huy et Namur.
Un bien rare sur le marché, à visiter sans tarder ! Renseignements donnés à titre informatif et non contractuel.
Référence | 7082694 |
---|---|
Catégorie | Immeuble à appartements |
Meublé | Non |
Nombre de chambres | 6 |
Nombre de salles de bain | 2 |
Jardin | Oui |
Garage | Non |
Terrasse | Oui |
Parking | Oui |
Surface habitable | 318 m² |
Surface du terrain | 2040 m² |
Disponibilité | à l'acte |
Nombre d'étages | 1 |
---|
Accès handicapés | Non |
---|---|
Cuisine | Oui |
Chauffage (ind/coll) (type (ind/coll)) | individuel |
Ascenseur | Non |
Double vitrage | Oui |
Chauffage (type) | mazout (chauf. centr.) |
Type de cuisine | équipée |
Nbre de toilette(s) (nombre) | 2 |
---|
Bureau | Oui |
---|---|
Grenier | Oui |
Cave | Oui |
Piscine | Non |
---|
Année de rénovation | 2012 |
---|
Type d'environnement | campagne |
---|
Certificat d'électricité (oui/non) | non |
---|
Label PEB (classe) | E |
---|---|
PEB E-SPEC (kwh/m²/an) | 362 |
Emission CO2 (émission CO2) | 47084 |
E total (Kwh/an) | 362 |
PEB code unique | 20240126001378 |
PEB valide jusqu'au (datetime) | 26/01/2034 |
Date du PEB (datetime) | 26/01/2034 |